| NIVEAU | PIÈCE | SURFACE |
Prix 239 000 € *
Appartement
SETE (34200)
Ref 341454814
Ref 4731-B101
- 40 m²
- 2 pièce(s)
- 1 chambre(s)
- NC
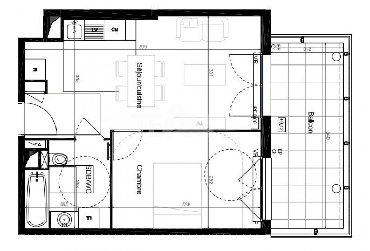
Appartement Neuf Type 2 vue Etang avec terrasse + parking
Appartement type 2 avec parking !!
1 belle chambres de 12.20m2 avec séjour /cuisine de 22.20m2 et grande terrasse 14m2.
A proximité des écoles, commerces et de la plage du LIDO.
Son architecture de standing avec ses lignes épurées et aérés rendent cet Résidence "LA SINGULIERE " exceptionnelle .
Eligible PINEL ,PTZ
Les informations sur les risques auxquels ce bien est exposé sont disponibles sur le site Géorisques
Notre barème d'honoraires
Bien soumis au statut juridique de la copropriété. Nb de lot :5.
* Honoraires charge vendeur.
(Bien faisant état d'une délégation de mandat)
Ce bien est en délégation de mandat
Diagnostics de performance énergétique
Voir le descriptif des pièces
À proximité de ce bien ...
Découvrez nos biens similaires ...
ou
Envoyer
cette annonce à un ami
cette annonce à un ami
Votre E-mail a bien été envoyé.
Une erreur s’est produite lors de l’envoi de votre e-mail.
Veuillez réessayer à nouveau
Veuillez réessayer à nouveau










