| NIVEAU | PIÈCE | SURFACE |
Prix 409 900 € *
Appartement
SETE CORNICHE PLAGE (34200)
Ref 341823657
Ref 6628B
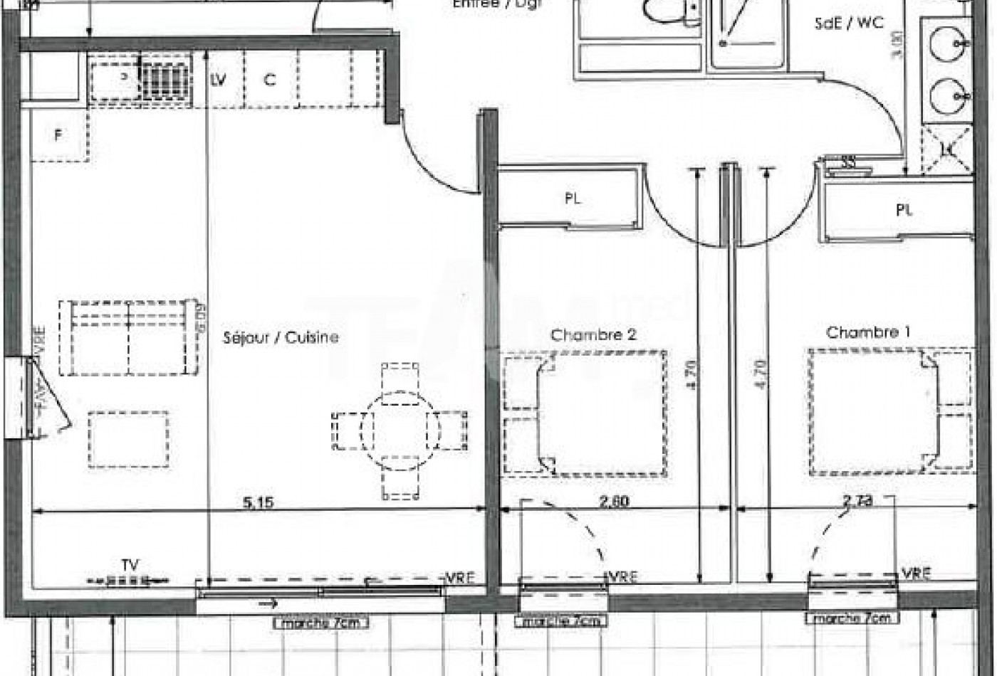
- 69 m²
- 3 pièce(s)
- 2 chambre(s)
- NC
Emplacement privilégié pour cette résidence en état futur d'achèvement située sur le boulevard Joliot Curie à 200 m de la plage et 400 m de tous les commerces. Appartement T3 traversant en 2ème étage de 69,35 m² ouvrant sur terrasse de 20,10 m² en exposition Est/Ouest et disposant de 2 parkings en sous-sol privatif inclus. Prestations de qualités en destination résidence principale au vu de sa situation. Profitez des prix de lancements. Frais de notaire réduits à 2,50 % LC 103
Les informations sur les risques auxquels ce bien est exposé sont disponibles sur le site Géorisques
Notre barème d'honoraires
* Honoraires charge vendeur.
(Bien faisant état d'une délégation de mandat)
Ce bien est en délégation de mandat
Diagnostics de performance énergétique
Voir le descriptif des pièces
À proximité de ce bien ...
Découvrez nos biens similaires ...
ou
Envoyer
cette annonce à un ami
cette annonce à un ami
Votre E-mail a bien été envoyé.
Une erreur s’est produite lors de l’envoi de votre e-mail.
Veuillez réessayer à nouveau
Veuillez réessayer à nouveau








